Verkocht: Sfeervolle, half vrijstaande woning met oprit, garage en diepe tuin!
Mauritsweg 97, 6171 AE Stein
€ 320.000,- k.k.
| Type object | Woonhuis, eengezinswoning, half vrijstaande woning |
|---|---|
| Woonoppervlakte | 109 m² |
| Status | Verkocht |
| Perceeloppervlakte | 680 m² |
|---|---|
| Aanvaarding | Direct |
Beschrijving
Deze sfeervolle half vrijstaande woning is gelegen op een geliefde locatie op loopafstand van het centrum, scholen en met een snelle verbinding naar de autosnelweg. Het pand is voorzien van houten en kunststof kozijnen met deels dubbelglas en geheel rolluiken. De woning is heel sfeervol met een speelse indeling en mooie, royale tuin. De tuin is mooi aangelegd met groot terras en men geniet van privacy, rust en zon. De garage is voorzien van een automatische poort en er is een oprit die zeker plaats biedt aan 2 auto’s.
!! VIRTUEEL BINNENKIJKEN met de 3D TOUR !!
!! VIRTUEEL BINNENKIJKEN met de 3D TOUR !!
Indeling
De hal geeft aan de linkerzijde toegang tot de badkamer en gastentoilet. Aan de rechterzijde toegang tot de sfeervolle woonkamer met laminaat en gezellige schouw met elektrische haard. De keuken staat in verbinding met de woonkamer en tuinkamer. De tuinkamer heeft een granieten vloer, schuifpui en mooi tuincontact. Vanuit de tuinkamer is ook een deur naar de oprit.
De keuken is netjes en voorzien van gaskookplaat, afzuigkap en koelkast.
Er is ook nog een handige kelder voor extra bergruimte.
De badkamer is voorzien van een wastafel en ligbad/douchecombinatie.
De keuken is netjes en voorzien van gaskookplaat, afzuigkap en koelkast.
Er is ook nog een handige kelder voor extra bergruimte.
De badkamer is voorzien van een wastafel en ligbad/douchecombinatie.
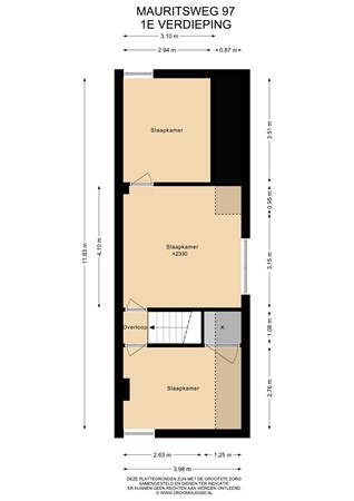
Eerste verdieping
De eerste verdieping heeft momenteel 2 slaapkamers en kan eenvoudig worden ingedeeld in 3 slaapkamers.
Bijzonderheden
- Op een fijne locatie op loopafstand van het centrum met alle voorzieningen en op korte afstand van de autosnelweg ligt deze sfeervolle woning met grote tuin, garage en oprit;
- Mooie tuinkamer met schuifpui naar de tuin;
- Mogelijkheden om verder te verduurzamen;
- Deels dubbelglas, houten en kunststof kozijnen. Energielabel G;
- cv-ketel eigendom uit 2023;
- Garage met automatische poort en aparte deur naar de tuin. Tevens is er nog een tuinhuisje in de tuin en extra serre.
Tot slot:
- Deze verkoopinformatie is met de nodige zorgvuldigheid samengesteld. Hierbij zijn wij deels afhankelijk van informatie die wij van derden ontvangen. Aan onjuistheden en/of onvolkomenheden kunt u echter geen rechten ontlenen. Indien bepaalde informatie voor u van wezenlijk belang is dan adviseren wij u deze op juistheid te controleren. Onzerzijds wordt geen aansprakelijkheid aanvaardt voor enige onvolledigheid, onjuistheid of anderszins, dan wel de gevolgen daarvan. Alle opgegeven maten en oppervlakten zijn indicatief;
- Koper is te allen tijde gerechtigd om voor eigen rekening een bouwkundig onderzoek te (laten) verrichten, dan wel andere adviseurs te raadplegen teneinde een goed inzicht te verkrijgen in de staat van onderhoud of andere aspecten van de onroerende zaak. Koper dient bij het doen van een bod wel direct aan te geven of hij een dergelijk onderzoek wenst;
- De waarborgsom/bankgarantie is 10% van de koopsom. De koper dient deze 1 week na het vervallen van de ontbindende voorwaarden bij de desbetreffende notaris te deponeren;
- Ter bescherming van de belangen van zowel koper als verkoper, wordt uitdrukkelijk gesteld dat een koopovereenkomst met betrekking tot deze onroerende zaak eerst dan tot stand komt, nadat koper en verkoper de koopovereenkomst hebben getekend ("schriftelijkheidsvereiste").
- Mooie tuinkamer met schuifpui naar de tuin;
- Mogelijkheden om verder te verduurzamen;
- Deels dubbelglas, houten en kunststof kozijnen. Energielabel G;
- cv-ketel eigendom uit 2023;
- Garage met automatische poort en aparte deur naar de tuin. Tevens is er nog een tuinhuisje in de tuin en extra serre.
Tot slot:
- Deze verkoopinformatie is met de nodige zorgvuldigheid samengesteld. Hierbij zijn wij deels afhankelijk van informatie die wij van derden ontvangen. Aan onjuistheden en/of onvolkomenheden kunt u echter geen rechten ontlenen. Indien bepaalde informatie voor u van wezenlijk belang is dan adviseren wij u deze op juistheid te controleren. Onzerzijds wordt geen aansprakelijkheid aanvaardt voor enige onvolledigheid, onjuistheid of anderszins, dan wel de gevolgen daarvan. Alle opgegeven maten en oppervlakten zijn indicatief;
- Koper is te allen tijde gerechtigd om voor eigen rekening een bouwkundig onderzoek te (laten) verrichten, dan wel andere adviseurs te raadplegen teneinde een goed inzicht te verkrijgen in de staat van onderhoud of andere aspecten van de onroerende zaak. Koper dient bij het doen van een bod wel direct aan te geven of hij een dergelijk onderzoek wenst;
- De waarborgsom/bankgarantie is 10% van de koopsom. De koper dient deze 1 week na het vervallen van de ontbindende voorwaarden bij de desbetreffende notaris te deponeren;
- Ter bescherming van de belangen van zowel koper als verkoper, wordt uitdrukkelijk gesteld dat een koopovereenkomst met betrekking tot deze onroerende zaak eerst dan tot stand komt, nadat koper en verkoper de koopovereenkomst hebben getekend ("schriftelijkheidsvereiste").
Kenmerken
| Overdracht | |
|---|---|
| Referentienummer | 00451 |
| Vraagprijs | € 320.000,- k.k. |
| Inrichting | Ja |
| Inrichting | Gestoffeerd |
| Status | Verkocht |
| Aanvaarding | Direct |
| Aangeboden sinds | Dinsdag 9 december 2025 |
| Laatste wijziging | Maandag 5 januari 2026 |
| Bouw | |
|---|---|
| Type object | Woonhuis, eengezinswoning, half vrijstaande woning |
| Soort bouw | Bestaande bouw |
| Bouwperiode | 1929 |
| Dakbedekking | Bitumen Dakpannen |
| Type dak | Samengesteld |
| Isolatievormen | Gedeeltelijk dubbel glas |
| Oppervlaktes en inhoud | |
|---|---|
| Perceeloppervlakte | 680 m² |
| Woonoppervlakte | 109 m² |
| Inhoud | 516 m³ |
| Oppervlakte overige inpandige ruimten | 43 m² |
| Oppervlakte externe bergruimte | 24 m² |
| Indeling | |
|---|---|
| Aantal bouwlagen | 2 (en 1 kelder) |
| Aantal kamers | 4 (waarvan 2 slaapkamers) |
| Aantal badkamers | 1 (en 1 apart toilet) |
| Locatie | |
|---|---|
| Ligging | In woonwijk Nabij school Nabij snelweg |
| Tuin | |
|---|---|
| Type | Achtertuin |
| Hoofdtuin | Ja |
| Oriëntering | Noorden |
| Staat | Goed onderhouden |
| Energieverbruik | |
|---|---|
| Energielabel | G |
| CV ketel | |
|---|---|
| CV ketel | Intergas |
| Warmtebron | Gas |
| Bouwjaar | 2023 |
| Eigendom | Eigendom |
| Uitrusting | |
|---|---|
| Warm water | CV-ketel |
| Verwarmingssysteem | Centrale verwarming |
| Ventilatie methode | Natuurlijke ventilatie |
| Badkamervoorzieningen | Ligbad Wastafel |
| Parkeergelegenheid | Aangebouwde stenen garage |
| Glasvezelaansluiting aanwezig | Ja |
| Tuin aanwezig | Ja |
| Heeft een garage | Ja |
| Heeft rolluiken | Ja |
| Heeft schuur/berging | Ja |
| Heeft een schuifpui | Ja |
| Kadastrale gegevens | |
|---|---|
| Kadastrale aanduiding | Stein B 3879 |
| Perceeloppervlakte | 680 m² |
| Omvang | Geheel perceel |
| Eigendomsituatie | Eigen grond |