Te koop: IN DE OUDE KERN VAN STEIN KARAKTERISTIEKE EN TE RENOVEREN WONING MET TUIN EN GARAGE. OPKNAPPER!
Kelderstraat 27, 6171 GA Stein
€ 298.000,- k.k.
| Type object | Woonhuis, eengezinswoning, vrijstaande woning |
|---|---|
| Woonoppervlakte | 145 m² |
| Status | Nieuw in verkoop |
| Perceeloppervlakte | 315 m² |
|---|---|
| Aanvaarding | Direct |
Beschrijving
Deze karakteristieke woning is gelegen op een hoekperceel in het geliefde oude gedeelte van Stein. Op loopafstand van de mooiste natuur met uitgestrekte wandelmogelijkheden, scholen en ook het centrum met alle winkels en horeca.
Het pand dient volledig gerenoveerd te worden en biedt uiteraard veel mogelijkheden. Er is geen centrale verwarming, in de woonkamer is een pelletkachel. Bekijk de presentatie aandachtig en bereid je dan ook goed voor bij de planning van een bezichtiging. Er is veel ruimte aanwezig en een extra garage aan de rechterzijde. De tuin is niet heel groot, maar prima afmeting voor een gezellige, leuke en zonnige tuin met vrije achterom, buitenberging en overkapping. In de jaren 1920/30 was aan de linkerzijde een hoedenwinkel en uiteraard door de ruimte biedt dit mogelijkheden voor werken aan huis.
Als extra tool hebben we een 3D virtuele rondgang gemaakt waarbij je ook alweer een goed inzicht kan krijgen! BEKIJK DE VIRTUELE TOUR MET ALLE OPTIES!
Het pand dient volledig gerenoveerd te worden en biedt uiteraard veel mogelijkheden. Er is geen centrale verwarming, in de woonkamer is een pelletkachel. Bekijk de presentatie aandachtig en bereid je dan ook goed voor bij de planning van een bezichtiging. Er is veel ruimte aanwezig en een extra garage aan de rechterzijde. De tuin is niet heel groot, maar prima afmeting voor een gezellige, leuke en zonnige tuin met vrije achterom, buitenberging en overkapping. In de jaren 1920/30 was aan de linkerzijde een hoedenwinkel en uiteraard door de ruimte biedt dit mogelijkheden voor werken aan huis.
Als extra tool hebben we een 3D virtuele rondgang gemaakt waarbij je ook alweer een goed inzicht kan krijgen! BEKIJK DE VIRTUELE TOUR MET ALLE OPTIES!
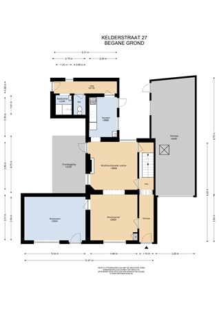
Indeling
Authentieke entree met de trapopgang naar de verdieping.
De woonkamer is vroeger ‘ensuite’ geweest en dat is nog zichtbaar. Aan de linkerzijde is nog een grote ruimte, vroeger was dit winkel met een eigen ingang.
De eenvoudige keuken is gelegen achter de woonkamer en geeft toegang tot een klein patiogedeelte en de garage.
Achter de keuken is een portaal/hal met doucheruimte en toilet.
De woonkamer is vroeger ‘ensuite’ geweest en dat is nog zichtbaar. Aan de linkerzijde is nog een grote ruimte, vroeger was dit winkel met een eigen ingang.
De eenvoudige keuken is gelegen achter de woonkamer en geeft toegang tot een klein patiogedeelte en de garage.
Achter de keuken is een portaal/hal met doucheruimte en toilet.
Eerste verdieping
Er zijn 2 slaapkamers en een badkamer met wastafel, ligbad en douche.
Tweede verdieping
De royale zolderverdieping bereikbaar met een vaste trap, veel lichtinval en biedt veel mogelijkheden!
Bijzonderheden
- bijzonder sfeervolle en royale woning op zeer geliefde locatie;
- verkoop met clausule ‘as is, where is’;
- advies bezichtiging met begeleiding van een bouwkundige professional;
- te renoveren object;
- pand is aangemerkt als zijnde categorie waardevol (beeldbepalend) gemeente Stein;
- houten en kunststof kozijnen met nagenoeg geheel dubbelglas;
- verder geen isolaties;
- oude kern van Stein, zeer geliefd en uniek;
- garage en tuin aanwezig;
- sfeervol en karakteristiek met veel mogelijkheden!
- verkoop met clausule ‘as is, where is’;
- advies bezichtiging met begeleiding van een bouwkundige professional;
- te renoveren object;
- pand is aangemerkt als zijnde categorie waardevol (beeldbepalend) gemeente Stein;
- houten en kunststof kozijnen met nagenoeg geheel dubbelglas;
- verder geen isolaties;
- oude kern van Stein, zeer geliefd en uniek;
- garage en tuin aanwezig;
- sfeervol en karakteristiek met veel mogelijkheden!
Kenmerken
| Overdracht | |
|---|---|
| Referentienummer | 00459 |
| Vraagprijs | € 298.000,- k.k. |
| Inrichting | Niet gestoffeerd |
| Inrichting | Niet gemeubileerd |
| Status | Nieuw in verkoop |
| Aanvaarding | Direct |
| Aangeboden sinds | Vrijdag 13 maart 2026 |
| Bouw | |
|---|---|
| Type object | Woonhuis, eengezinswoning, vrijstaande woning |
| Soort bouw | Bestaande bouw |
| Bouwperiode | 1935 |
| Dakbedekking | Bitumen Dakpannen |
| Type dak | Samengesteld |
| Isolatievormen | Gedeeltelijk dubbel glas |
| Oppervlaktes en inhoud | |
|---|---|
| Perceeloppervlakte | 315 m² |
| Woonoppervlakte | 145 m² |
| Inhoud | 832 m³ |
| Oppervlakte overige inpandige ruimten | 77 m² |
| Oppervlakte externe bergruimte | 8 m² |
| Oppervlakte gebouwgebonden buitenruimte | 13 m² |
| Indeling | |
|---|---|
| Aantal bouwlagen | 3 |
| Aantal kamers | 5 (waarvan 3 slaapkamers) |
| Aantal badkamers | 1 (en 1 apart toilet) |
| Locatie | |
|---|---|
| Ligging | Aan rustige weg |
| Tuin | |
|---|---|
| Type | Achtertuin |
| Hoofdtuin | Ja |
| Oriëntering | Zuid-west |
| Heeft een achterom | Ja |
| Staat | Dient nog te worden aangelegd. |
| Energieverbruik | |
|---|---|
| Energielabel | G |
| Uitrusting | |
|---|---|
| Verwarmingssysteem | Pelletkachel |
| Badkamervoorzieningen | Douche Ligbad Wastafel |
| Parkeergelegenheid | Aangebouwde stenen garage |
| Tuin aanwezig | Ja |
| Heeft een garage | Ja |
| Heeft schuur/berging | Ja |
| Heeft een dakraam | Ja |
| Kadastrale gegevens | |
|---|---|
| Kadastrale aanduiding | Stein D 3487 |
| Perceeloppervlakte | 315 m² |
| Omvang | Geheel perceel |
| Eigendomsituatie | Eigen grond |