Verkocht onder voorbehoud: FRAAIE, VRIJSTAANDE WONING MET INPANDIGE GARAGE EN MOOI AANGELEGDE TUIN OP GELIEFDE LOCATIE AAN DE RAND VAN OUD STEIN.
Dirgelen 99, 6171 DD Stein
€ 549.000,- k.k.
| Type object | Woonhuis, eengezinswoning, vrijstaande woning |
|---|---|
| Woonoppervlakte | 143 m² |
| Status | Verkocht onder voorbehoud |
| Perceeloppervlakte | 366 m² |
|---|---|
| Aanvaarding | Direct |
Beschrijving
Deze vrijstaande woning is gelegen op de geliefde locatie aan de rand van Oud-Stein op
loopafstand van winkels, scholen en een snelle verbinding naar de autosnelweg. Het pand is degelijk gebouwd, uitstekend onderhouden en geheel voorzien van hardhouten kozijnen met dubbelglas. Verder is de woning voorzien van ingebouwde rolluiken. De zij- en achtertuin is mooi aangelegd en aan de rechterzijde is een glazen tuinkamer met tegelvloer die ook gebruikt kan worden als plantenkast. Aan de achterzijde vanuit de woonkamer en keuken is ook een serre/tuinkamer, alwaar men heerlijk zicht en contact heeft met de tuin en in direct contact staat met de woonkamer en keuken.
De begane grond is nagenoeg geheel voorzien van vloerverwarming.
De garage is inpandig bereikbaar en heeft een dubbele toegangsdeur naar de oprit én een deur naar de tuin. Er is een extra aanrecht en aansluitingen voor de wasapparatuur.
!! VIRTUEEL NU AL BINNENKIJKEN !! Klik op de button virtuele tour op de website en Funda.
loopafstand van winkels, scholen en een snelle verbinding naar de autosnelweg. Het pand is degelijk gebouwd, uitstekend onderhouden en geheel voorzien van hardhouten kozijnen met dubbelglas. Verder is de woning voorzien van ingebouwde rolluiken. De zij- en achtertuin is mooi aangelegd en aan de rechterzijde is een glazen tuinkamer met tegelvloer die ook gebruikt kan worden als plantenkast. Aan de achterzijde vanuit de woonkamer en keuken is ook een serre/tuinkamer, alwaar men heerlijk zicht en contact heeft met de tuin en in direct contact staat met de woonkamer en keuken.
De begane grond is nagenoeg geheel voorzien van vloerverwarming.
De garage is inpandig bereikbaar en heeft een dubbele toegangsdeur naar de oprit én een deur naar de tuin. Er is een extra aanrecht en aansluitingen voor de wasapparatuur.
!! VIRTUEEL NU AL BINNENKIJKEN !! Klik op de button virtuele tour op de website en Funda.
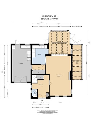
Indeling
De begane grond is nagenoeg geheel voorzien van een lichte, tegelvloer mét vloerverwarming. De hal is voorzien van de meterkast, toiletruimte met fonteintje en toegang tot de woonkamer. De woonkamer heeft dubbele deuren naar de serre/tuinkamer en nog de originele schouwpartij met elektrische haard.
De keuken staat in halfopen verbinding met de woonkamer en is voorzien van een granieten aanrechtblad, keramische kookplaat, afzuigkap, koelkast, vaastwasser en combi-magnetron.
Vanuit de keuken is er een tussenportaal met vaste kastenwand en toegang tot de garage.
Vanuit de keuken én de woonkamer bereikt men de serre/tuinkamer met tegelvloer. Heerlijke plek om direct in contact te zijn met de tuin.
De keuken staat in halfopen verbinding met de woonkamer en is voorzien van een granieten aanrechtblad, keramische kookplaat, afzuigkap, koelkast, vaastwasser en combi-magnetron.
Vanuit de keuken is er een tussenportaal met vaste kastenwand en toegang tot de garage.
Vanuit de keuken én de woonkamer bereikt men de serre/tuinkamer met tegelvloer. Heerlijke plek om direct in contact te zijn met de tuin.
Eerste verdieping
De eerste verdieping heeft 3 slaapkamers en royale badkamer. De badkamer is voorzien van een douche, wastafel en 2de toilet.
Vanuit 1 van de slaapkamers is nog een extra kamer toegankelijk (gelegen op de garage).
Op de ruime overloop/trapopgang is een airco unit geplaatst.
Vanuit 1 van de slaapkamers is nog een extra kamer toegankelijk (gelegen op de garage).
Op de ruime overloop/trapopgang is een airco unit geplaatst.
Overige verdiepingen
De grote zolder is bereikbaar met een vlizotrap. Vaste trap realiseren is mogelijk.
Bijzonderheden
- Op zeer geliefde locatie gelegen vrijstaande woning op loopafstand van winkels en scholen;
- Vloerverwarming begane grond, ingebouwde rolluiken, airco en zonnepanelen;
- Aangelegde tuin met glazen tuinkamer en extra serre direct aan de woonkamer en keuken;
- Licht en smaakvol interieur, uiteraard genoeg potentie voor eigen smaak en veel mogelijkheden;
- Inpandig bereikbare garage.
Tot slot:
- Deze verkoopinformatie is met de nodige zorgvuldigheid samengesteld. Hierbij zijn wij deels afhankelijk van informatie die wij van derden ontvangen. Aan onjuistheden en/of onvolkomenheden kunt u echter geen rechten ontlenen. Indien bepaalde informatie voor u van wezenlijk belang is dan adviseren wij u deze op juistheid te controleren. Onzerzijds wordt geen aansprakelijkheid aanvaardt voor enige onvolledigheid, onjuistheid of anderszins, dan wel de gevolgen daarvan. Alle opgegeven maten en oppervlakten zijn indicatief;
- Koper is te allen tijde gerechtigd om voor eigen rekening een bouwkundig onderzoek te (laten) verrichten, dan wel andere adviseurs te raadplegen teneinde een goed inzicht te verkrijgen in de staat van onderhoud of andere aspecten van de onroerende zaak. Koper dient bij het doen van een bod wel direct aan te geven of hij een dergelijk onderzoek wenst;
- De waarborgsom/bankgarantie is 10% van de koopsom. De koper dient deze 1 week na het vervallen van de ontbindende voorwaarden bij de desbetreffende notaris te deponeren;
- Ter bescherming van de belangen van zowel koper als verkoper, wordt uitdrukkelijk gesteld dat een koopovereenkomst met betrekking tot deze onroerende zaak eerst dan tot stand komt, nadat koper en verkoper de koopovereenkomst hebben getekend ("schriftelijkheidsvereiste").
- Vloerverwarming begane grond, ingebouwde rolluiken, airco en zonnepanelen;
- Aangelegde tuin met glazen tuinkamer en extra serre direct aan de woonkamer en keuken;
- Licht en smaakvol interieur, uiteraard genoeg potentie voor eigen smaak en veel mogelijkheden;
- Inpandig bereikbare garage.
Tot slot:
- Deze verkoopinformatie is met de nodige zorgvuldigheid samengesteld. Hierbij zijn wij deels afhankelijk van informatie die wij van derden ontvangen. Aan onjuistheden en/of onvolkomenheden kunt u echter geen rechten ontlenen. Indien bepaalde informatie voor u van wezenlijk belang is dan adviseren wij u deze op juistheid te controleren. Onzerzijds wordt geen aansprakelijkheid aanvaardt voor enige onvolledigheid, onjuistheid of anderszins, dan wel de gevolgen daarvan. Alle opgegeven maten en oppervlakten zijn indicatief;
- Koper is te allen tijde gerechtigd om voor eigen rekening een bouwkundig onderzoek te (laten) verrichten, dan wel andere adviseurs te raadplegen teneinde een goed inzicht te verkrijgen in de staat van onderhoud of andere aspecten van de onroerende zaak. Koper dient bij het doen van een bod wel direct aan te geven of hij een dergelijk onderzoek wenst;
- De waarborgsom/bankgarantie is 10% van de koopsom. De koper dient deze 1 week na het vervallen van de ontbindende voorwaarden bij de desbetreffende notaris te deponeren;
- Ter bescherming van de belangen van zowel koper als verkoper, wordt uitdrukkelijk gesteld dat een koopovereenkomst met betrekking tot deze onroerende zaak eerst dan tot stand komt, nadat koper en verkoper de koopovereenkomst hebben getekend ("schriftelijkheidsvereiste").
Kenmerken
| Overdracht | |
|---|---|
| Referentienummer | 00432 |
| Vraagprijs | € 549.000,- k.k. |
| Status | Verkocht onder voorbehoud |
| Aanvaarding | Direct |
| Aangeboden sinds | Donderdag 25 september 2025 |
| Laatste wijziging | Donderdag 12 februari 2026 |
| Bouw | |
|---|---|
| Type object | Woonhuis, eengezinswoning, vrijstaande woning |
| Soort bouw | Bestaande bouw |
| Bouwperiode | 1996 |
| Dakbedekking | Dakpannen |
| Type dak | Samengesteld |
| Keurmerken | Energie prestatie advies |
| Isolatievormen | Dakisolatie Dubbel glas Muurisolatie |
| Oppervlaktes en inhoud | |
|---|---|
| Perceeloppervlakte | 366 m² |
| Woonoppervlakte | 143 m² |
| Inhoud | 645 m³ |
| Oppervlakte overige inpandige ruimten | 38 m² |
| Oppervlakte externe bergruimte | 30 m² |
| Indeling | |
|---|---|
| Aantal bouwlagen | 3 |
| Aantal kamers | 6 (waarvan 3 slaapkamers) |
| Aantal badkamers | 1 (en 1 apart toilet) |
| Locatie | |
|---|---|
| Ligging | Aan rustige weg In woonwijk |
| Tuin | |
|---|---|
| Type | Tuin rondom |
| Hoofdtuin | Ja |
| Heeft een achterom | Ja |
| Staat | Prachtig aangelegd |
| Energieverbruik | |
|---|---|
| Energielabel | B |
| CV ketel | |
|---|---|
| CV ketel | Bosch |
| Warmtebron | Gas |
| Bouwjaar | 2011 |
| Combiketel | Ja |
| Eigendom | Eigendom |
| Uitrusting | |
|---|---|
| Warm water | CV-ketel |
| Verwarmingssysteem | Airconditioning Centrale verwarming Vloerverwarming (gedeeltelijk) |
| Ventilatie methode | Mechanische ventilatie Natuurlijke ventilatie |
| Badkamervoorzieningen | Douche Toilet Vloerverwarming Wastafel |
| Parkeergelegenheid | Garage |
| Heeft airco | Ja |
| Tuin aanwezig | Ja |
| Heeft een garage | Ja |
| Heeft rolluiken | Ja |
| Heeft schuur/berging | Ja |
| Heeft zonnepanelen | Ja |
| Heeft ventilatie | Ja |
| Kadastrale gegevens | |
|---|---|
| Kadastrale aanduiding | Stein C 4447 |
| Perceeloppervlakte | 9 m² |
| Omvang | Geheel perceel |
| Eigendomsituatie | Eigen grond |
| Kadastrale aanduiding | Stein C 4416 |
| Perceeloppervlakte | 357 m² |
| Omvang | Geheel perceel |
| Eigendomsituatie | Eigen grond |