Verkocht: INSTAPKLARE HALF VRIJSTAANDE WONING MET TUIN, OPRIT EN GROTE GARAGE.
Tulpstraat 55, 6361 JB Nuth
€ 250.000,- k.k.
| Type object | Woonhuis, eengezinswoning, half vrijstaande woning |
|---|---|
| Woonoppervlakte | 80 m² |
| Status | Verkocht |
| Perceeloppervlakte | 237 m² |
|---|---|
| Aanvaarding | In overleg |
Beschrijving
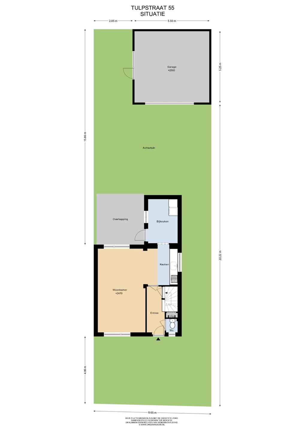
Deze half vrijstaande (ideale starterswoning) is gelegen op een leuke en fijne locatie in Nuth ‘Vaesrade’. De woning is keurig onderhouden en werkelijk instapklaar. Er zijn geheel kunststof kozijnen (m.u.v. Wc en bijkeuken) en nagenoeg geheel rolluiken. Voor extra comfort is er een airco unit op de overloop eerste verdieping. De inrichting is licht en smaakvol. Uiteraard is er altijd ruimte voor eigen modernisering/smaak. De oprit geeft toegang tot de grote garage die plaats kan bieden aan 2 auto’s.
De tuin is onderhoudsvriendelijk aangelegd en achterom vrij bereikbaar via de oprit. Er is een overdekt terras voor lekker langer buiten te genieten!
! VIRTUEEL BINNENKIJKEN VIA DE BUTTON !!
De tuin is onderhoudsvriendelijk aangelegd en achterom vrij bereikbaar via de oprit. Er is een overdekt terras voor lekker langer buiten te genieten!
! VIRTUEEL BINNENKIJKEN VIA DE BUTTON !!
Indeling
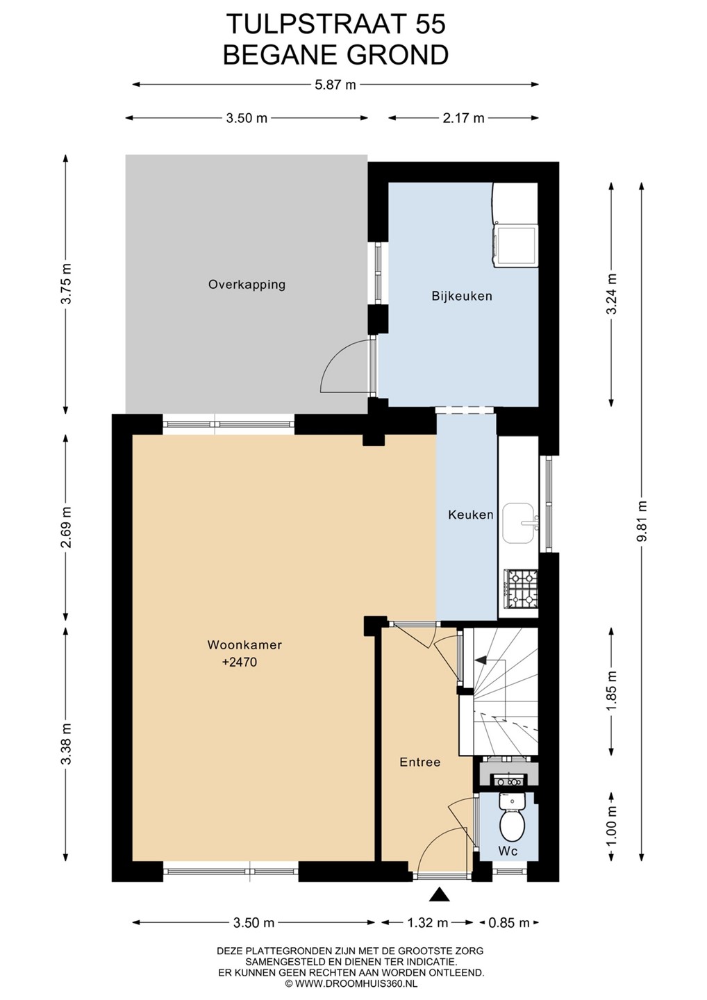
De gehele begane grond vloer is voorzien van een laminaatvloer. De hal is voorzien van een toilet en meterkast. Vanuit de hal bereikt men de lichte woonkamer. De keuken staat in open verbinding met de woonkamer. De keuken is voorzien van een gaskookplaat en oven. Vanuit de keuken bereikt men de bijkeuken. De bijkeuken is extra functioneel en praktisch voor extra keuken apparatuur en de wasmachine. Vanuit de bijkeuken is er een deur naar de tuin.
Eerste verdieping
De verdieping is voorzien van een laminaatvloer. De overloop geeft toegang tot de 3 slaapkamers en de badkamer. De badkamer is voorzien van een douche, wastafel en 2de toilet.
Er is een vlizotrap naar de bergzolder.
Er is een vlizotrap naar de bergzolder.
Bijzonderheden
- Leuke half vrijstaande woning, keurig onderhouden en instapklaar;
- Ideale starterswoning;
- Geheel kunststof kozijnen met dubbelglas en m.u.v. wc en bijkeuken en nagenoeg geheel rolluiken ;
- Airco unit op de overloop voor extra comfort;
- Grote garage biedt plaats aan twee auto’s met poort naar de oprit en aparte deur naar de tuin;
- Tuin is onderhoudsvriendelijk aangelegd en heeft een aparte zij ingang en overdekt terras;
- Rustige ligging in het dorpje Vaesrade Nuth met goede verbinding naar de autosnelweg en nabij scholen en winkels.
Tot slot:
- Deze verkoopinformatie is met de nodige zorgvuldigheid samengesteld. Hierbij zijn wij deels afhankelijk van informatie die wij van derden ontvangen. Aan onjuistheden en/of onvolkomenheden kunt u echter geen rechten ontlenen. Indien bepaalde informatie voor u van wezenlijk belang is dan adviseren wij u deze op juistheid te controleren. Onzerzijds wordt geen aansprakelijkheid aanvaardt voor enige onvolledigheid, onjuistheid of anderszins, dan wel de gevolgen daarvan. Alle opgegeven maten en oppervlakten zijn indicatief;
- Koper is te allen tijde gerechtigd om voor eigen rekening een bouwkundig onderzoek te (laten) verrichten, dan wel andere adviseurs te raadplegen teneinde een goed inzicht te verkrijgen in de staat van onderhoud of andere aspecten van de onroerende zaak. Koper dient bij het doen van een bod wel direct aan te geven of hij een dergelijk onderzoek wenst;
- De waarborgsom/bankgarantie is 10% van de koopsom. De koper dient deze 1 week na het vervallen van de ontbindende voorwaarden bij de desbetreffende notaris te deponeren;
- Ter bescherming van de belangen van zowel koper als verkoper, wordt uitdrukkelijk gesteld dat een koopovereenkomst met betrekking tot deze onroerende zaak eerst dan tot stand komt, nadat koper en verkoper de koopovereenkomst hebben getekend ("schriftelijkheidsvereiste").
- Ideale starterswoning;
- Geheel kunststof kozijnen met dubbelglas en m.u.v. wc en bijkeuken en nagenoeg geheel rolluiken ;
- Airco unit op de overloop voor extra comfort;
- Grote garage biedt plaats aan twee auto’s met poort naar de oprit en aparte deur naar de tuin;
- Tuin is onderhoudsvriendelijk aangelegd en heeft een aparte zij ingang en overdekt terras;
- Rustige ligging in het dorpje Vaesrade Nuth met goede verbinding naar de autosnelweg en nabij scholen en winkels.
Tot slot:
- Deze verkoopinformatie is met de nodige zorgvuldigheid samengesteld. Hierbij zijn wij deels afhankelijk van informatie die wij van derden ontvangen. Aan onjuistheden en/of onvolkomenheden kunt u echter geen rechten ontlenen. Indien bepaalde informatie voor u van wezenlijk belang is dan adviseren wij u deze op juistheid te controleren. Onzerzijds wordt geen aansprakelijkheid aanvaardt voor enige onvolledigheid, onjuistheid of anderszins, dan wel de gevolgen daarvan. Alle opgegeven maten en oppervlakten zijn indicatief;
- Koper is te allen tijde gerechtigd om voor eigen rekening een bouwkundig onderzoek te (laten) verrichten, dan wel andere adviseurs te raadplegen teneinde een goed inzicht te verkrijgen in de staat van onderhoud of andere aspecten van de onroerende zaak. Koper dient bij het doen van een bod wel direct aan te geven of hij een dergelijk onderzoek wenst;
- De waarborgsom/bankgarantie is 10% van de koopsom. De koper dient deze 1 week na het vervallen van de ontbindende voorwaarden bij de desbetreffende notaris te deponeren;
- Ter bescherming van de belangen van zowel koper als verkoper, wordt uitdrukkelijk gesteld dat een koopovereenkomst met betrekking tot deze onroerende zaak eerst dan tot stand komt, nadat koper en verkoper de koopovereenkomst hebben getekend ("schriftelijkheidsvereiste").
Kenmerken
| Overdracht | |
|---|---|
| Referentienummer | 00440 |
| Vraagprijs | € 250.000,- k.k. |
| Status | Verkocht |
| Aanvaarding | In overleg |
| Aangeboden sinds | Maandag 29 september 2025 |
| Laatste wijziging | Donderdag 23 oktober 2025 |
| Bouw | |
|---|---|
| Type object | Woonhuis, eengezinswoning, half vrijstaande woning |
| Soort bouw | Bestaande bouw |
| Bouwperiode | 1964 |
| Dakbedekking | Dakpannen |
| Type dak | Zadeldak |
| Keurmerken | Energie prestatie advies |
| Isolatievormen | Dakisolatie Dubbel glas Spouwmuren |
| Oppervlaktes en inhoud | |
|---|---|
| Perceeloppervlakte | 237 m² |
| Woonoppervlakte | 80 m² |
| Inhoud | 329 m³ |
| Oppervlakte overige inpandige ruimten | 7 m² |
| Oppervlakte externe bergruimte | 29 m² |
| Oppervlakte gebouwgebonden buitenruimte | 13 m² |
| Indeling | |
|---|---|
| Aantal bouwlagen | 3 |
| Aantal kamers | 4 (waarvan 3 slaapkamers) |
| Aantal badkamers | 1 (en 1 apart toilet) |
| Tuin | |
|---|---|
| Type | Achtertuin |
| Hoofdtuin | Ja |
| Oriëntering | Zuiden |
| Heeft een achterom | Ja |
| Staat | Goed onderhouden |
| Energieverbruik | |
|---|---|
| Energielabel | C |
| CV ketel | |
|---|---|
| CV ketel | Nefit |
| Warmtebron | Gas |
| Bouwjaar | 2016 |
| Combiketel | Ja |
| Eigendom | Huur |
| Uitrusting | |
|---|---|
| Warm water | CV-ketel |
| Verwarmingssysteem | Airconditioning Centrale verwarming |
| Badkamervoorzieningen | Douche Toilet Wastafel |
| Parkeergelegenheid | Vrijstaande stenen garage |
| Heeft airco | Ja |
| Tuin aanwezig | Ja |
| Heeft een garage | Ja |
| Heeft rolluiken | Ja |
| Heeft zonnepanelen | Ja |
| Kadastrale gegevens | |
|---|---|
| Kadastrale aanduiding | Nuth B 2292 |
| Perceeloppervlakte | 237 m² |
| Eigendomsituatie | Eigen grond |