Te koop: Moderne twee-onder-één kapwoning op geliefde locatie met omsloten tuin met overdekt terras, carport en grote stalling/berging.
Joost van den Vondelstraat 18, 6181 DL Elsloo
€ 380.000,- k.k.
| Type object | Woonhuis, eengezinswoning, twee onder een kap woning |
|---|---|
| Woonoppervlakte | 164 m² |
| Status | Nieuw in verkoop |
| Perceeloppervlakte | 222 m² |
|---|---|
| Aanvaarding | In overleg |
Beschrijving
Deze bijzonder ruime, half vrijstaande woning is gelegen op een geliefde locatie in Elsloo op loopafstand van winkels, scholen en bijzonder centraal t.o.v. de autosnelweg. Het pand is aan de binnenzijde recent vanaf 2022 van boven tot onder volledig gemoderniseerd met een nieuwe keuken, badkamer, wand-plafondafwerkingen en fraaie afgewerkte zolder met eventueel de mogelijkheid voor extra badkamer (voorbereiding aanwezig). Het interieur, de afwerking is smaakvol en licht afgewerkt en geheel in de stijl van het ‘nu’. Inpandig bereikt men de functionele berging die dient als stalling en bijkeuken. De tuin is geheel omsloten en men zit heerlijk ‘vrij’ volledige privacy met een zonnig overdekt terras. Er zijn volledig houten kozijnen met dubbelglas, de kozijnen/buitenkant kan naar eigen wens/smaak nog gemoderniseerd/opgeknapt worden, zodat het één geheel is met de binnenzijde.
!! VIRTUEEL BINNENKIJKEN MET ONZE 3D virtuele tour !!
!! VIRTUEEL BINNENKIJKEN MET ONZE 3D virtuele tour !!
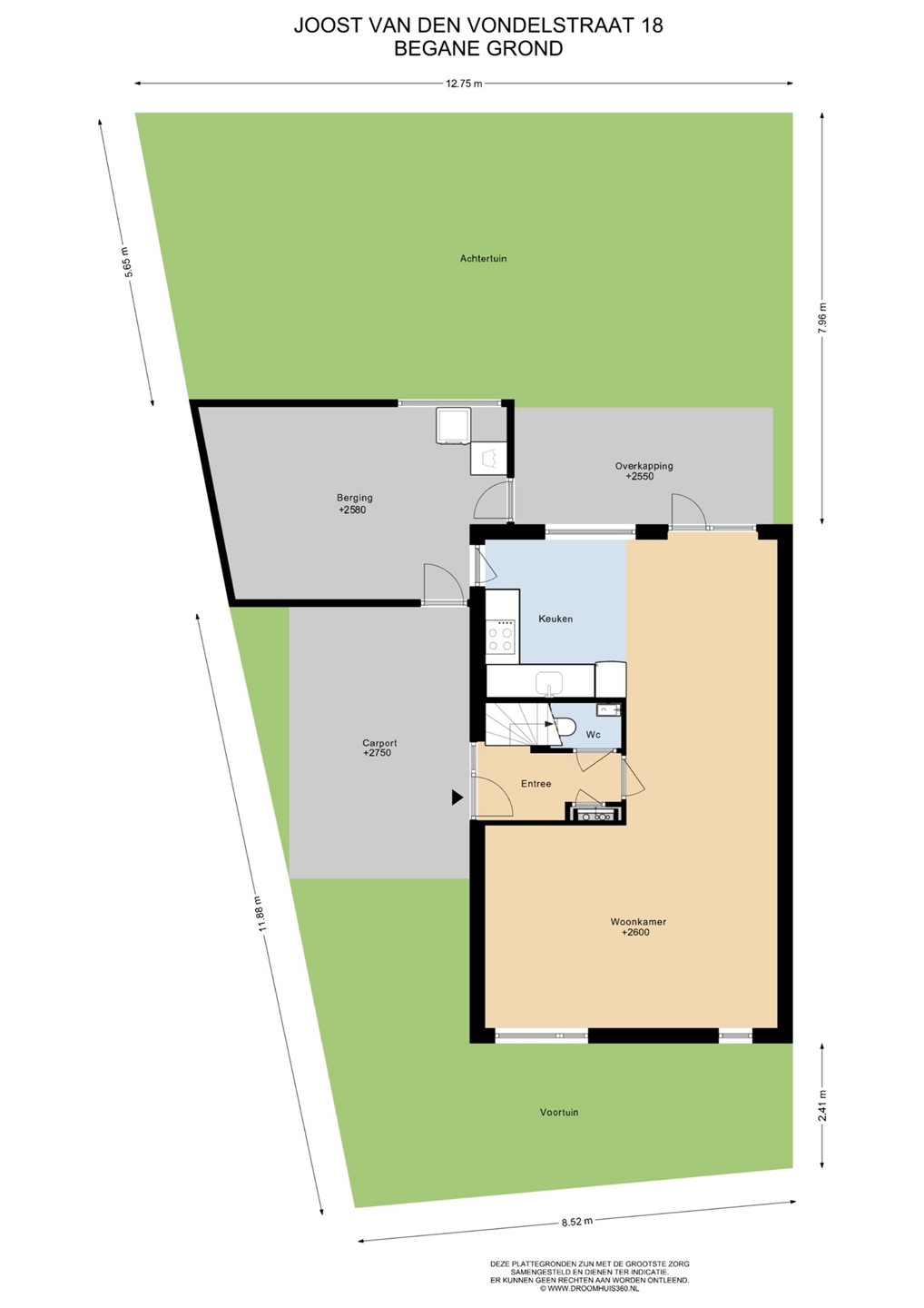
Indeling
De begane grond is voorzien van een nieuwe, tijdloze vloer. De hal heeft een toilet met fonteintje en de meterkast (vernieuwd en uitgebreid).
De riante woonkamer met veel lichtinval en staat in open verbinding met de keuken. De keuken heeft een fraaie, smaakvolle aanbouwkeuken met eiland/bar, inductiekookplaat, afzuigkap, vaatwasser en oven.
Vanuit de keuken bereikt men de grote bijkeuken met tegelvloer, deur naar de oprit en deur naar de oprit. Voor nu dient deze functionele bijkeuken als extra bergruimte, apparatuur en wasruimte.
De keuken heeft ook tuincontact en toegang tot de tuin. De woonkamer en keuken zijn samen circa 48m2 groot.
De riante woonkamer met veel lichtinval en staat in open verbinding met de keuken. De keuken heeft een fraaie, smaakvolle aanbouwkeuken met eiland/bar, inductiekookplaat, afzuigkap, vaatwasser en oven.
Vanuit de keuken bereikt men de grote bijkeuken met tegelvloer, deur naar de oprit en deur naar de oprit. Voor nu dient deze functionele bijkeuken als extra bergruimte, apparatuur en wasruimte.
De keuken heeft ook tuincontact en toegang tot de tuin. De woonkamer en keuken zijn samen circa 48m2 groot.
Eerste verdieping
De eerste verdieping (circa 54m2) heeft 3 riante slaapkamers met een laminaatvloer en strakke wanden en plafonds. De luxe badkamer is eveneens geheel vernieuwd en voorzien van wastafel badmeubel, 2de toilet (met handdouche), aparte douche en ligbad.
Tweede verdieping
De royale tweede verdieping van circa 35 m2 is eveneens voorzien van een laminaatvloer, veel lichtinval, strakke wanden en plafonds. Hier kunnen naar wens diverse slaapkamers worden gerealiseerd met ook een eigen, 2de badkamer naar wens. Er is al rekening gehouden met afvoer/water (achter de koof bevinden zich de voorbereidingen).
Er is een grote dakkapel en 2 dakramen.
Verder is er nog voldoende berging aanwezig en de standplaats van de cv-ketel ( huurtoestel dient door de koper overgenomen te worden).
Er is een grote dakkapel en 2 dakramen.
Verder is er nog voldoende berging aanwezig en de standplaats van de cv-ketel ( huurtoestel dient door de koper overgenomen te worden).
Bijzonderheden
- Rustige en goede locatie in elsloo, op loopafstand van winkels en scholen;
- Snelle bereikbaarheid naar de autosnelweg;
- Bijzonder ruime woning met maar liefst 164 m2 woonoppervlakte inclusief de bijkeuken;
- Carport en ruime oprit;
- Recent geheel gemoderniseerd aan de binnenzijde in een lichte en moderne stijl en werkelijk instapklaar. Buitenzijde kan altijd naar eigen wens eventueel nog opgeknapt worden;
- Dubbelglas in houten kozijnen;
- Energielabel C.
Tot slot:
- Deze verkoopinformatie is met de nodige zorgvuldigheid samengesteld. Hierbij zijn wij deels afhankelijk van informatie die wij van derden ontvangen. Aan onjuistheden en/of onvolkomenheden kunt u echter geen rechten ontlenen. Indien bepaalde informatie voor u van wezenlijk belang is dan adviseren wij u deze op juistheid te controleren. Onzerzijds wordt geen aansprakelijkheid aanvaardt voor enige onvolledigheid, onjuistheid of anderszins, dan wel de gevolgen daarvan. Alle opgegeven maten en oppervlakten zijn indicatief;
- Koper is te allen tijde gerechtigd om voor eigen rekening een bouwkundig onderzoek te (laten) verrichten, dan wel andere adviseurs te raadplegen teneinde een goed inzicht te verkrijgen in de staat van onderhoud of andere aspecten van de onroerende zaak. Koper dient bij het doen van een bod wel direct aan te geven of hij een dergelijk onderzoek wenst;
- De waarborgsom/bankgarantie is 10% van de koopsom. De koper dient deze 1 week na het vervallen van de ontbindende voorwaarden bij de desbetreffende notaris te deponeren;
- Ter bescherming van de belangen van zowel koper als verkoper, wordt uitdrukkelijk gesteld dat een koopovereenkomst met betrekking tot deze onroerende zaak eerst dan tot stand komt, nadat koper en verkoper de koopovereenkomst hebben getekend ("schriftelijkheidsvereiste").
- Snelle bereikbaarheid naar de autosnelweg;
- Bijzonder ruime woning met maar liefst 164 m2 woonoppervlakte inclusief de bijkeuken;
- Carport en ruime oprit;
- Recent geheel gemoderniseerd aan de binnenzijde in een lichte en moderne stijl en werkelijk instapklaar. Buitenzijde kan altijd naar eigen wens eventueel nog opgeknapt worden;
- Dubbelglas in houten kozijnen;
- Energielabel C.
Tot slot:
- Deze verkoopinformatie is met de nodige zorgvuldigheid samengesteld. Hierbij zijn wij deels afhankelijk van informatie die wij van derden ontvangen. Aan onjuistheden en/of onvolkomenheden kunt u echter geen rechten ontlenen. Indien bepaalde informatie voor u van wezenlijk belang is dan adviseren wij u deze op juistheid te controleren. Onzerzijds wordt geen aansprakelijkheid aanvaardt voor enige onvolledigheid, onjuistheid of anderszins, dan wel de gevolgen daarvan. Alle opgegeven maten en oppervlakten zijn indicatief;
- Koper is te allen tijde gerechtigd om voor eigen rekening een bouwkundig onderzoek te (laten) verrichten, dan wel andere adviseurs te raadplegen teneinde een goed inzicht te verkrijgen in de staat van onderhoud of andere aspecten van de onroerende zaak. Koper dient bij het doen van een bod wel direct aan te geven of hij een dergelijk onderzoek wenst;
- De waarborgsom/bankgarantie is 10% van de koopsom. De koper dient deze 1 week na het vervallen van de ontbindende voorwaarden bij de desbetreffende notaris te deponeren;
- Ter bescherming van de belangen van zowel koper als verkoper, wordt uitdrukkelijk gesteld dat een koopovereenkomst met betrekking tot deze onroerende zaak eerst dan tot stand komt, nadat koper en verkoper de koopovereenkomst hebben getekend ("schriftelijkheidsvereiste").
Kenmerken
| Overdracht | |
|---|---|
| Referentienummer | 00456 |
| Vraagprijs | € 380.000,- k.k. |
| Inrichting | Ja |
| Inrichting | Gestoffeerd |
| Status | Nieuw in verkoop |
| Aanvaarding | In overleg |
| Aangeboden sinds | Donderdag 15 januari 2026 |
| Laatste wijziging | Dinsdag 27 januari 2026 |
| Bouw | |
|---|---|
| Type object | Woonhuis, eengezinswoning, twee onder een kap woning |
| Soort bouw | Bestaande bouw |
| Bouwperiode | 1980 |
| Dakbedekking | Dakpannen |
| Type dak | Zadeldak |
| Isolatievormen | Dakisolatie Dubbel glas |
| Oppervlaktes en inhoud | |
|---|---|
| Perceeloppervlakte | 222 m² |
| Woonoppervlakte | 164 m² |
| Inhoud | 570 m³ |
| Oppervlakte gebouwgebonden buitenruimte | 30 m² |
| Indeling | |
|---|---|
| Aantal bouwlagen | 3 |
| Aantal kamers | 5 (waarvan 4 slaapkamers) |
| Aantal badkamers | 1 (en 1 apart toilet) |
| Locatie | |
|---|---|
| Ligging | Aan rustige weg In woonwijk |
| Tuin | |
|---|---|
| Type | Achtertuin |
| Hoofdtuin | Ja |
| Staat | Goed onderhouden |
| Energieverbruik | |
|---|---|
| Energielabel | C |
| CV ketel | |
|---|---|
| CV ketel | Nefit |
| Warmtebron | Gas |
| Eigendom | Huur |
| Uitrusting | |
|---|---|
| Aantal parkeerplaatsen | 2 |
| Aantal overdekte parkeerplaatsen | 1 |
| Warm water | CV-ketel |
| Verwarmingssysteem | Airconditioning Centrale verwarming |
| Ventilatie methode | Mechanische ventilatie Natuurlijke ventilatie |
| Keukenvoorzieningen | Inbouwapparatuur Kookeiland |
| Badkamervoorzieningen | Douche Ligbad Toilet Wastafelmeubel |
| Parkeergelegenheid | Carport |
| Heeft airco | Ja |
| Glasvezelaansluiting aanwezig | Ja |
| Tuin aanwezig | Ja |
| Heeft een dakraam | Ja |
| Heeft ventilatie | Ja |
| Kadastrale gegevens | |
|---|---|
| Kadastrale aanduiding | Elsloo A 3089 |
| Perceeloppervlakte | 222 m² |
| Omvang | Geheel perceel |
| Eigendomsituatie | Eigen grond |