Onder bod: Instapklare, moderne woning met 5 slaapkamers, garage en geheel aangepaste levensloopbestendige leefruimte!
Joannes Riviusstraat 25, 6181 BT Elsloo
€ 435.000,- k.k.
| Type object | Woonhuis, eengezinswoning, geschakelde twee onder een kap woning |
|---|---|
| Woonoppervlakte | 147 m² |
| Status | Onder bod |
| Perceeloppervlakte | 255 m² |
|---|---|
| Aanvaarding | In overleg |
Beschrijving
Deze moderne, Instapklare en uitgebouwde woning is gelegen op een geliefde locatie in Elsloo op loopafstand van winkels en scholen en met een goede en snelle verbinding naar de autosnelweg. Het pand is voorzien van een goed isolatiepakket, nagenoeg geheel dubbelglas (deels HR++), deels vloerverwarming (begane grond), dak-vloer-en spouwmuurisolatie. De begane grond is uitgebouwd met een volledig voor minder validen aanpaste woonruimte met automatische deuren, royale slaapkamer en badkamer! De uitbouw geeft veel mogelijkheden ofwel levensloopbestendig wonen of wonen/werken aan huis.
De omsloten tuin is onderhoudsvriendelijk aangelegd en voorzien van een terras met te openen schuifdak.
De tuin is bereikbaar vanuit de aanbouw/gelijkvloerse leefruimte en de woonkamer.
De garage is inpandig bereikbaar met een automatische deur naar de woonkamer en de oprit. De garage wordt eveneens gebruikt als wasruimte.
!! VIRTUEEL RONDLOPEN EN BINNENKIJKEN MET DE 3D VIRTUELE TOUR !!
De omsloten tuin is onderhoudsvriendelijk aangelegd en voorzien van een terras met te openen schuifdak.
De tuin is bereikbaar vanuit de aanbouw/gelijkvloerse leefruimte en de woonkamer.
De garage is inpandig bereikbaar met een automatische deur naar de woonkamer en de oprit. De garage wordt eveneens gebruikt als wasruimte.
!! VIRTUEEL RONDLOPEN EN BINNENKIJKEN MET DE 3D VIRTUELE TOUR !!
Indeling
De gehele begane grond vloer is voorzien van een grijze gesealde grindvloer (vloerverwarming in keuken en woonkamer). De hal is voorzien van de meterkast en moderne toiletruimte met fonteintje.
De royale woonkamer heeft een open moderne keuken (2019) met kookeiland, gesitueerd in het ‘hart’ van de woning. Aan de tuin zijde is dan de eetkamer met de automatische deuren met toegang tot garage en de leefruimte begane grond.
De royale slaapkamer op de begane grond heeft toegang tot de tuin en staat in open verbinding met de royale badkamer, alles volledig ingericht voor minder validen/levensloopbestendig wonen.
De badkamer heeft een inloopdouche, wastafel en toilet. Er is een automatische plafond til lift (ter overname) van slaapkamer naar de badkamer.
De royale woonkamer heeft een open moderne keuken (2019) met kookeiland, gesitueerd in het ‘hart’ van de woning. Aan de tuin zijde is dan de eetkamer met de automatische deuren met toegang tot garage en de leefruimte begane grond.
De royale slaapkamer op de begane grond heeft toegang tot de tuin en staat in open verbinding met de royale badkamer, alles volledig ingericht voor minder validen/levensloopbestendig wonen.
De badkamer heeft een inloopdouche, wastafel en toilet. Er is een automatische plafond til lift (ter overname) van slaapkamer naar de badkamer.
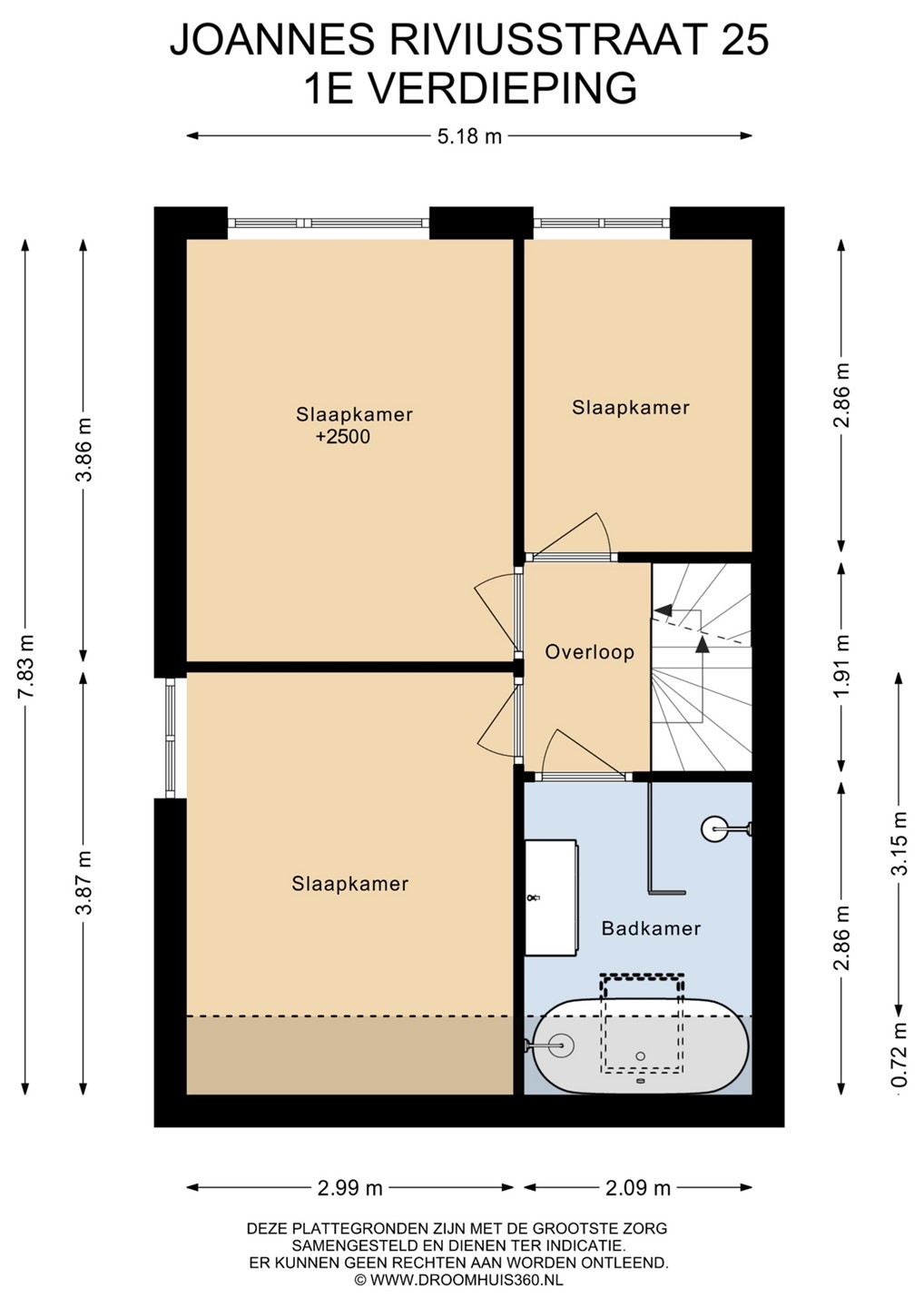
Eerste verdieping
De eerste verdieping is voorzien van een laminaatvloer. De overloop geeft toegang tot de 3 slaapkamers en de moderne badkamer.
De badkamer is vernieuwd in 2018 en voorzien van een vrijstaand ligbad, inloopdouche (met massage functie) en wastafel in badmeubel.
De badkamer is vernieuwd in 2018 en voorzien van een vrijstaand ligbad, inloopdouche (met massage functie) en wastafel in badmeubel.
Tweede verdieping
De 2de verdieping heeft een extra (5de) slaapkamer met dakraam, voldoende bergruimte en de stookruimte (cv-ketel Nefit huurtoestel).
Bijzonderheden
- Half vrijstaande met de garage geschakelde woning op geliefde en rustige locatie in Elsloo op loopafstand van alle voorzieningen, scholen en met een goede en snelle verbinding naar de autosnelweg;
- Verduurzaamd met een goed isolatiepakket (vloer/spouw/dak), 17 zonnepanelen (2016), 2 airco-units (woonkamer en slaapkamer 2025), nagenoeg geheel dubbelglas in houten en kunststof kozijnen, deels HR++ glas (voordeur en 3 slaapkamers enkel glas), grotendeels rolluiken;
- Airco unit woonkamer is van 7kw dus extra vermogen;
- Energielabel B;
- Begane grond volledig uitgebouwd tot volwaardig levensloopbestendig wonen met royale slaap-en badkamer, extra brede én automatische deuren. Verwarming middels infra rood panelen en extra boiler en groepenkast aanwezig voor de aanbouw. Volledig rolstoel toegankelijk;
- Woning biedt o.a. door de uitbouw veel mogelijkheden;
- De woning is bereikbaar vanuit de oprit met volledig (op afstand bedienbaar of met hand sensor) geautomatiseerde brede deuren en dus volledig toegankelijk voor minder validen;
- Plafond til lift aanwezig op slaapkamer en badkamer om volledig van bed en badkamer te kunnen wisselen met de lift, is ter overname;
- CV ketel Nefit combi is huurtoestel en dient door de koper overgenomen te worden;
- Strak en modern interieur met o.a. badkamer verdieping 2018, keuken begane grond 2019 en aanbouw 2021 met nieuw isolatiepakket van 2025;
- Vloerverwarming in woonkamer/keuken;
- Koepels platte dak vernieuwd in 2025;
- Tuin is onderhoudsvriendelijk en geheel omsloten met schutting. Er is een heerlijk terras met schuifbaar dak om heerlijk te genieten van een overkapping ofwel lekker zitten in de open lucht.
Tot slot:
- Deze verkoopinformatie is met de nodige zorgvuldigheid samengesteld. Hierbij zijn wij deels afhankelijk van informatie die wij van derden ontvangen. Aan onjuistheden en/of onvolkomenheden kunt u echter geen rechten ontlenen. Indien bepaalde informatie voor u van wezenlijk belang is dan adviseren wij u deze op juistheid te controleren. Onzerzijds wordt geen aansprakelijkheid aanvaardt voor enige onvolledigheid, onjuistheid of anderszins, dan wel de gevolgen daarvan. Alle opgegeven maten en oppervlakten zijn indicatief;
- Koper is te allen tijde gerechtigd om voor eigen rekening een bouwkundig onderzoek te (laten) verrichten, dan wel andere adviseurs te raadplegen teneinde een goed inzicht te verkrijgen in de staat van onderhoud of andere aspecten van de onroerende zaak. Koper dient bij het doen van een bod wel direct aan te geven of hij een dergelijk onderzoek wenst;
- De waarborgsom/bankgarantie is 10% van de koopsom. De koper dient deze 1 week na het vervallen van de ontbindende voorwaarden bij de desbetreffende notaris te deponeren;
- Ter bescherming van de belangen van zowel koper als verkoper, wordt uitdrukkelijk gesteld dat een koopovereenkomst met betrekking tot deze onroerende zaak eerst dan tot stand komt, nadat koper en verkoper de koopovereenkomst hebben getekend ("schriftelijkheidsvereiste").
- Verduurzaamd met een goed isolatiepakket (vloer/spouw/dak), 17 zonnepanelen (2016), 2 airco-units (woonkamer en slaapkamer 2025), nagenoeg geheel dubbelglas in houten en kunststof kozijnen, deels HR++ glas (voordeur en 3 slaapkamers enkel glas), grotendeels rolluiken;
- Airco unit woonkamer is van 7kw dus extra vermogen;
- Energielabel B;
- Begane grond volledig uitgebouwd tot volwaardig levensloopbestendig wonen met royale slaap-en badkamer, extra brede én automatische deuren. Verwarming middels infra rood panelen en extra boiler en groepenkast aanwezig voor de aanbouw. Volledig rolstoel toegankelijk;
- Woning biedt o.a. door de uitbouw veel mogelijkheden;
- De woning is bereikbaar vanuit de oprit met volledig (op afstand bedienbaar of met hand sensor) geautomatiseerde brede deuren en dus volledig toegankelijk voor minder validen;
- Plafond til lift aanwezig op slaapkamer en badkamer om volledig van bed en badkamer te kunnen wisselen met de lift, is ter overname;
- CV ketel Nefit combi is huurtoestel en dient door de koper overgenomen te worden;
- Strak en modern interieur met o.a. badkamer verdieping 2018, keuken begane grond 2019 en aanbouw 2021 met nieuw isolatiepakket van 2025;
- Vloerverwarming in woonkamer/keuken;
- Koepels platte dak vernieuwd in 2025;
- Tuin is onderhoudsvriendelijk en geheel omsloten met schutting. Er is een heerlijk terras met schuifbaar dak om heerlijk te genieten van een overkapping ofwel lekker zitten in de open lucht.
Tot slot:
- Deze verkoopinformatie is met de nodige zorgvuldigheid samengesteld. Hierbij zijn wij deels afhankelijk van informatie die wij van derden ontvangen. Aan onjuistheden en/of onvolkomenheden kunt u echter geen rechten ontlenen. Indien bepaalde informatie voor u van wezenlijk belang is dan adviseren wij u deze op juistheid te controleren. Onzerzijds wordt geen aansprakelijkheid aanvaardt voor enige onvolledigheid, onjuistheid of anderszins, dan wel de gevolgen daarvan. Alle opgegeven maten en oppervlakten zijn indicatief;
- Koper is te allen tijde gerechtigd om voor eigen rekening een bouwkundig onderzoek te (laten) verrichten, dan wel andere adviseurs te raadplegen teneinde een goed inzicht te verkrijgen in de staat van onderhoud of andere aspecten van de onroerende zaak. Koper dient bij het doen van een bod wel direct aan te geven of hij een dergelijk onderzoek wenst;
- De waarborgsom/bankgarantie is 10% van de koopsom. De koper dient deze 1 week na het vervallen van de ontbindende voorwaarden bij de desbetreffende notaris te deponeren;
- Ter bescherming van de belangen van zowel koper als verkoper, wordt uitdrukkelijk gesteld dat een koopovereenkomst met betrekking tot deze onroerende zaak eerst dan tot stand komt, nadat koper en verkoper de koopovereenkomst hebben getekend ("schriftelijkheidsvereiste").
Kenmerken
| Overdracht | |
|---|---|
| Referentienummer | 00449 |
| Vraagprijs | € 435.000,- k.k. |
| Inrichting | Ja |
| Inrichting | Gestoffeerd |
| Status | Onder bod |
| Aanvaarding | In overleg |
| Aangeboden sinds | Donderdag 6 november 2025 |
| Laatste wijziging | Vrijdag 28 november 2025 |
| Bouw | |
|---|---|
| Type object | Woonhuis, eengezinswoning, geschakelde twee onder een kap woning |
| Soort bouw | Bestaande bouw |
| Toegankelijkheid | Mindervaliden Senioren |
| Bouwperiode | 1991 |
| Dakbedekking | Bitumen Dakpannen |
| Type dak | Samengesteld |
| Keurmerken | Energie prestatie advies |
| Isolatievormen | Dakisolatie Grotendeels dubbel glas Muurisolatie Vloerisolatie |
| Oppervlaktes en inhoud | |
|---|---|
| Perceeloppervlakte | 255 m² |
| Woonoppervlakte | 147 m² |
| Inhoud | 610 m³ |
| Oppervlakte overige inpandige ruimten | 24 m² |
| Oppervlakte gebouwgebonden buitenruimte | 13 m² |
| Indeling | |
|---|---|
| Aantal bouwlagen | 3 |
| Aantal kamers | 6 (waarvan 5 slaapkamers) |
| Aantal badkamers | 2 (en 1 apart toilet) |
| Locatie | |
|---|---|
| Ligging | Aan rustige weg Dichtbij openbaar vervoer In woonwijk Nabij school Nabij snelweg |
| Tuin | |
|---|---|
| Type | Achtertuin |
| Hoofdtuin | Ja |
| Oriëntering | Noorden |
| Staat | Goed onderhouden |
| Energieverbruik | |
|---|---|
| Energielabel | B |
| CV ketel | |
|---|---|
| CV ketel | Nefit |
| Warmtebron | Gas |
| Bouwjaar | 2015 |
| Combiketel | Ja |
| Eigendom | Huur |
| Uitrusting | |
|---|---|
| Warm water | CV-ketel |
| Verwarmingssysteem | Airconditioning Centrale verwarming Vloerverwarming (gedeeltelijk) |
| Ventilatie methode | Mechanische ventilatie Natuurlijke ventilatie |
| Badkamervoorzieningen Badkamer 1 | Inloopdouche Toilet Wastafel |
| Badkamervoorzieningen Badkamer 2 | Inloopdouche Ligbad Wastafelmeubel |
| Parkeergelegenheid | Aangebouwde stenen garage |
| Heeft airco | Ja |
| Glasvezelaansluiting aanwezig | Ja |
| Tuin aanwezig | Ja |
| Heeft een garage | Ja |
| Heeft een dakraam | Ja |
| Heeft zonnepanelen | Ja |
| Heeft ventilatie | Ja |
| Kadastrale gegevens | |
|---|---|
| Kadastrale aanduiding | Elsloo A 3480 |
| Perceeloppervlakte | 255 m² |
| Omvang | Geheel perceel |
| Eigendomsituatie | Eigen grond |