Beschrijving

Deze half vrijstaande woning is rustig gelegen in het dorpje Urmond met een snelle verbinding naar de autosnelweg en de belangrijkste uitvalswegen. Tevens zijn in het dorp scholen en winkels en met enkele autominutene bereikt men de iets grote centrums van Stein en Geleen als voorbeeld. De woning is goed onderhouden en voorzien van een licht interieur. De kozijnen zijn van hout en kunststof met dubbelglas. Er zijn zonnepanelen om de energiejaarrekening laag te houden. De tuin is keurig aangelegd en voorzien van een gemetselde berging, bijkeuken en garage. De bijkeuken is bereikbaar vanuit de serre en vanuit de bijkeuken bereikt men weer de garage. De garage heeft een elektrische poort.

!! VIRTUEEL BINNENKIJKEN MET DE 3D Tour met de button op de website en Funda !!

Indeling

De hal is voorzien van de toiletruimte en meterkast. De lichte woonkamer heeft een deur naar de serre en toegang tot de keuken. De keuken is modern en licht ingericht en voorzien van de volgende inbouwapparatuur 
Vanuit de keuken bereikt men de mooie serre met glazen schuifdeuren.
De bijkeuken bereikt men vanuit de serre en is zeer functioneel voor de wasmachine en droger. Vanuit de bijkeuken bereikt men de garage.

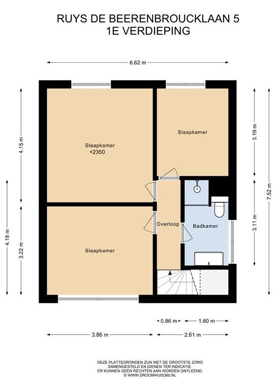
Eerste verdieping

De overloop geeft toegang tot de 3 slaapkamers en de badkamer. De badkamer is voorzijde van de douche, wastafel en badmeubel en 2de toilet.

Bijzonderheden

- zonnepanelen en deels rolluiken;
- kunststof en houten kozijnen met dubbelglas;
- mooie aangelegde tuin met gemetselde berging;
- cv- ketel is huurtoestel van 2024 (Intergas);
- garage en bijkeuken bereikbaar vanuit de serre;
- serre met glazen puien en mooi tuincontact;

Tot slot:
- Deze verkoopinformatie is met de nodige zorgvuldigheid samengesteld. Hierbij zijn wij deels afhankelijk van informatie die wij van derden ontvangen. Aan onjuistheden en/of onvolkomenheden kunt u echter geen rechten ontlenen. Indien bepaalde informatie voor u van wezenlijk belang is dan adviseren wij u deze op juistheid te controleren. Onzerzijds wordt geen aansprakelijkheid aanvaardt voor enige onvolledigheid, onjuistheid of anderszins, dan wel de gevolgen daarvan. Alle opgegeven maten en oppervlakten zijn indicatief;
- Koper is te allen tijde gerechtigd om voor eigen rekening een bouwkundig onderzoek te (laten) verrichten, dan wel andere adviseurs te raadplegen teneinde een goed inzicht te verkrijgen in de staat van onderhoud of andere aspecten van de onroerende zaak. Koper dient bij het doen van een bod wel direct aan te geven of hij een dergelijk onderzoek wenst;
- De waarborgsom/bankgarantie is 10% van de koopsom. De koper dient deze 1 week na het vervallen van de ontbindende voorwaarden bij de desbetreffende notaris te deponeren;
- Ter bescherming van de belangen van zowel koper als verkoper, wordt uitdrukkelijk gesteld dat een koopovereenkomst met betrekking tot deze onroerende zaak eerst dan tot stand komt, nadat koper en verkoper de koopovereenkomst hebben getekend ("schriftelijkheidsvereiste").

Kenmerken