Beschrijving

Deze moderne en instapklare half vrijstaande woning is gelegen aan de rand van Urmond met een goede verbinding naar de autosnelweg, scholen en winkels. Het pand is energiezuinig gebouwd met een optimaal isolatiepakket en geheel voorzien van hardhouten kozijnen met HR++ glas. De woning is voorzien van vloerverwarming op de begane grond. De zonnige tuin is onderhoudsvriendelijk aangelegd met terras, gazon, elektrisch zonnescherm en geeft toegang tot de garage. 

!! VIRTUEEL BINNENKIJKEN MET DE 3D TOUR !!

Indeling

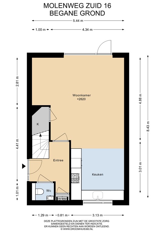
De gehele begane grond is voorzien van een pvc vloer met vloerverwarming. De hal is voorzien van meterkast (moderne en automatische groepenkast) en toiletruimte met fonteintje. De woonkamer heeft veel lichtinval en mooi tuincontact. De keuken staat in open verbinding met de woonkamer. De moderne keuken is voorzien van een gaskookplaat, afzuigkap, vaatwasser, koelkast en combi oven.

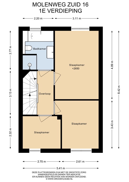
Eerste verdieping

De eerste verdieping is voorzien van een vinyl vloer. Er zijn 3 slaapkamers en de badkamer. De badkamer is voorzien van wastafel in badmeubel, inloopdouche, ligbad en 2de toilet.

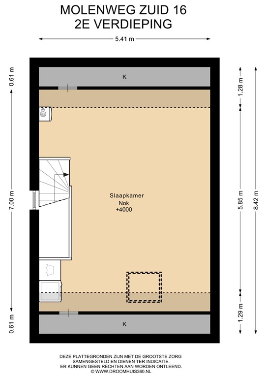
Tweede verdieping

De royale zolder is voorzien van een Velux dakraam, zij gevel raam en vinyl vloer.
De wasmachine aansluiting, wtw-installatie en cv-ketel (Intergas) zijn op de zolder geplaatst. 
De zolder biedt ruimte genoeg voor de extra slaapkamer, berging en wasruimte.

Bijzonderheden

- Op geliefde locatie ligt deze moderne half vrijstaande woning met garage en tuin;
- Mooi hoekperceel centraal t.o.v. autosnelweg en op loopafstand van school en nabij winkels;
- Volledig verduurzaamd o.a. HR ++glas in hardhouten kozijnen, 8 zonnepanelen en deels vloerverwarming;
- Geheel rolluiken en grotendeels horren bij de ramen;
- Instapklaar met een licht en modern interieur;
- Onderhoudsvriendelijke tuin met aparte ingang en toegang tot de garage;
- De garage is voorzien van een elektrische sectionaal poort en er is een oprit.

Tot slot:
- Deze verkoopinformatie is met de nodige zorgvuldigheid samengesteld. Hierbij zijn wij deels afhankelijk van informatie die wij van derden ontvangen. Aan onjuistheden en/of onvolkomenheden kunt u echter geen rechten ontlenen. Indien bepaalde informatie voor u van wezenlijk belang is dan adviseren wij u deze op juistheid te controleren. Onzerzijds wordt geen aansprakelijkheid aanvaardt voor enige onvolledigheid, onjuistheid of anderszins, dan wel de gevolgen daarvan. Alle opgegeven maten en oppervlakten zijn indicatief;
- Koper is te allen tijde gerechtigd om voor eigen rekening een bouwkundig onderzoek te (laten) verrichten, dan wel andere adviseurs te raadplegen teneinde een goed inzicht te verkrijgen in de staat van onderhoud of andere aspecten van de onroerende zaak. Koper dient bij het doen van een bod wel direct aan te geven of hij een dergelijk onderzoek wenst;
- De waarborgsom/bankgarantie is 10% van de koopsom. De koper dient deze 1 week na het vervallen van de ontbindende voorwaarden bij de desbetreffende notaris te deponeren;
- Ter bescherming van de belangen van zowel koper als verkoper, wordt uitdrukkelijk gesteld dat een koopovereenkomst met betrekking tot deze onroerende zaak eerst dan tot stand komt, nadat koper en verkoper de koopovereenkomst hebben getekend ("schriftelijkheidsvereiste").

Kenmerken