Beschrijving

Deze half vrijstaande woning is rustig gelegen op een geliefde woonlocatie in Stein, op loopafstand van scholen en het centrum met een groot divers winkelaanbod. Het pand is deels voorzien van dubbelglas in kunststof kozijnen en er zijn rolluiken. Op de overloop is een airco unit geplaatst, dit biedt extra comfort. De grote en zonnige tuin is keurig aangelegd met een groot terras en een vrije achterom. 
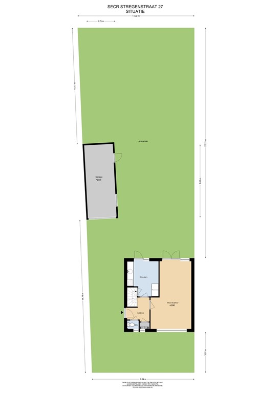
De garage heeft een poort naar de oprit en separate deur naar de tuin.

!! VIRTUEEL BINNENKIJKEN MET DE 3D TOUR !!

Indeling

De hal is voorzien van een tegelvloer, toiletruimte en toegang tot de kelder, keuken en woonkamer.

De woonkamer heeft een laminaatvloer en deur naar de tuin. De gesloten keuken is voorzien van een tegelvloer, deur naar de tuin en eenvoudige, witte aanbouwkeuken.

Eerste verdieping

De overloop geeft toegang tot de 3 slaapkamers en de badkamer.
De badkamer is licht betegeld en voorzien van een ligbad en wastafel.

Bijzonderheden

- Fijne locatie op loopafstand van het winkelcentrum en nabij snelweg en scholen;
- Garage met aparte loopdeur naar de tuin;
- Mooi aangelegde, grote en zonnige tuin met aparte toegang via de oprit;
- Kunststof kozijnen met deels dubbelglas;
- Woning met veel mogelijkheden.

Tot slot:
- Deze verkoopinformatie is met de nodige zorgvuldigheid samengesteld. Hierbij zijn wij deels afhankelijk van informatie die wij van derden ontvangen. Aan onjuistheden en/of onvolkomenheden kunt u echter geen rechten ontlenen. Indien bepaalde informatie voor u van wezenlijk belang is dan adviseren wij u deze op juistheid te controleren. Onzerzijds wordt geen aansprakelijkheid aanvaardt voor enige onvolledigheid, onjuistheid of anderszins, dan wel de gevolgen daarvan. Alle opgegeven maten en oppervlakten zijn indicatief;
- Koper is te allen tijde gerechtigd om voor eigen rekening een bouwkundig onderzoek te (laten) verrichten, dan wel andere adviseurs te raadplegen teneinde een goed inzicht te verkrijgen in de staat van onderhoud of andere aspecten van de onroerende zaak. Koper dient bij het doen van een bod wel direct aan te geven of hij een dergelijk onderzoek wenst;
- De waarborgsom/bankgarantie is 10% van de koopsom. De koper dient deze 1 week na het vervallen van de ontbindende voorwaarden bij de desbetreffende notaris te deponeren;
- Ter bescherming van de belangen van zowel koper als verkoper, wordt uitdrukkelijk gesteld dat een koopovereenkomst met betrekking tot deze onroerende zaak eerst dan tot stand komt, nadat koper en verkoper de koopovereenkomst hebben getekend ("schriftelijkheidsvereiste").

Kenmerken