Beschrijving

Deze moderne tussenwoning is gelegen op een centrale locatie aan de rand van Stein op loopafstand van winkels, scholen en met een snelle verbinding naar de autosnelweg. Het pand is geheel voorzien van hardhouten kozijnen met dubbelglas m.u.v. dubbele deuren naar de tuin die zijn van kunststof met dubbelglas. en er is deels vloerverwarming (begane grond en eerste verdieping). Energielabel A dus energiezuinig wonen. De tuin is onderhoudsvriendelijk aangelegd en is achterin bereikbaar en heeft een gemetselde berging, ideaal voor stallen motor of fiets. 

!! VIRTUEEL BINNENKIJKEN EN RONDKIJKEN !!

Indeling

De begane grond is voorzien van een pvc vloer met vloerverwarming. De hal is voorzien van de toilet en meterkast (automatische groepenkast). De keuken staat in open verbinding met de woonkamer. De woonkamer heeft een bergkast en mooi contact middels dubbele tuindeuren naar de tuin.
De keuken is in 2017 vernieuwd en voorzien van gaskookplaat, combi-oven, afzuigkap, koelkast, vaatwasser en

Eerste verdieping

De eerste verdieping is eveneens voorzien van een pvc vloer met vloerverwarming. Er zijn 2 royale slaapkamers (oorspronkelijk 3) en de badkamer.
De badkamer is vernieuwd in 2017 en voorzien van inloopdouche, ligbad met whirlpool en wastafel (aansluiting 2de wastafel aanwezig).

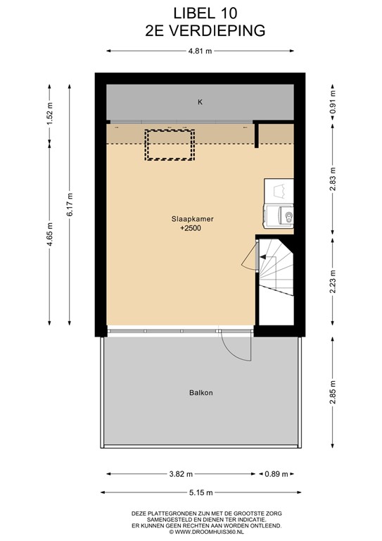
Tweede verdieping

De tweede verdieping heeft nog een extra kamer en dakterras.

Bijzonderheden

- Moderne en energiezuinige tussenwoning met grote berging;
- Ideale starterswoning, centrale ligging;
- Geheel houten kozijnen met dubbelglas, de pui naar de tuin is van kunststof;
- Grotendeels vloerverwarming voor extra comfort met 2 verdelers (begane grond en verdieping);
- energiezuinig wonen met Energielabel A;
- Moderne badkamer en keuken;
- Grote berging achterom bereikbaar met fiets/motor;
- Tuin is onderhoudsvriendelijk aangelegd en heeft een aparte achteringang;
- Goede centrale ligging met snelle verbinding naar de autosnelweg en nabij scholen, centrum Stein en winkels.

Tot slot:
- Deze verkoopinformatie is met de nodige zorgvuldigheid samengesteld. Hierbij zijn wij deels afhankelijk van informatie die wij van derden ontvangen. Aan onjuistheden en/of onvolkomenheden kunt u echter geen rechten ontlenen. Indien bepaalde informatie voor u van wezenlijk belang is dan adviseren wij u deze op juistheid te controleren. Onzerzijds wordt geen aansprakelijkheid aanvaardt voor enige onvolledigheid, onjuistheid of anderszins, dan wel de gevolgen daarvan. Alle opgegeven maten en oppervlakten zijn indicatief;
- Koper is te allen tijde gerechtigd om voor eigen rekening een bouwkundig onderzoek te (laten) verrichten, dan wel andere adviseurs te raadplegen teneinde een goed inzicht te verkrijgen in de staat van onderhoud of andere aspecten van de onroerende zaak. Koper dient bij het doen van een bod wel direct aan te geven of hij een dergelijk onderzoek wenst;
- De waarborgsom/bankgarantie is 10% van de koopsom. De koper dient deze 1 week na het vervallen van de ontbindende voorwaarden bij de desbetreffende notaris te deponeren;
- Ter bescherming van de belangen van zowel koper als verkoper, wordt uitdrukkelijk gesteld dat een koopovereenkomst met betrekking tot deze onroerende zaak eerst dan tot stand komt, nadat koper en verkoper de koopovereenkomst hebben getekend ("schriftelijkheidsvereiste").

Kenmerken