Beschrijving

Deze instapklare tussenwoning is gelegen op een fijne locatie in de wijk Lindenheuvel, heel centraal wat betreft openbaar vervoer, uitvalswegen en de autoweg. Winkelvoorzieningen zijn op loopafstand. Het pand is goed onderhouden en recent gemoderniseerd met o.a. een nieuwe luxe badkamer. Er zijn kunststof kozijnen met dubbelglas en enkele ramen zijn hout met enkel glas (zoals wc en een bovenraam). De tuin is netjes doch eenvoudig met wel een heel fijn overdekt terras en buitenberging. De tuin is achterom bereikbaar.

!! BINNENKIJKEN MET DE VIRTUELE RONDGANG, klik op de link op de website en op Funda !!

Indeling

De begane grond is voorzien van een laminaatvloer en strakke wand en plafondafwerking. De hal heeft een toiletruimte en toegang tot de kelder.
De woonkamer staat in open verbinding met de nette keuken voorzien van afzuigkap, koelkast, vaatwasser en 

De keuken heeft een deur naar het overdekte terras en tuin.

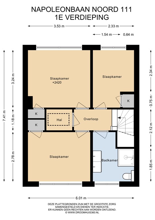
Eerste verdieping

De eerste verdieping is voorzien van een laminaatvloer.
Er zijn 3 slaapkamers en de nieuwe badkamer met grote wastafel met meubel, inloopdouche uur en 2de toilet.
De oude douche ruimte dient nu als berging en hier staat de vlizotrap naar de zolder.

Tweede verdieping

De zolder is bereikbaar de vlizotrap en dient voor nu als bergruimte. Het dak is nageïsoleerd.

Bijzonderheden

- zonnepanelen, dakisolatie en nagenoeg geheel dubbelglas;
- Energielabel C;
- Centrale locatie nabij winkels, scholen en uitvalswegen;
- Keurig afgewerkt interieur en instapklaar;
- Tuin is netjes doch verdient nog een beetje aandacht. Er is een overdekt terras, buitenberging en achter ingang.

Tot slot:
- Deze verkoopinformatie is met de nodige zorgvuldigheid samengesteld. Hierbij zijn wij deels afhankelijk van informatie die wij van derden ontvangen. Aan onjuistheden en/of onvolkomenheden kunt u echter geen rechten ontlenen. Indien bepaalde informatie voor u van wezenlijk belang is dan adviseren wij u deze op juistheid te controleren. Onzerzijds wordt geen aansprakelijkheid aanvaardt voor enige onvolledigheid, onjuistheid of anderszins, dan wel de gevolgen daarvan. Alle opgegeven maten en oppervlakten zijn indicatief;
- Koper is te allen tijde gerechtigd om voor eigen rekening een bouwkundig onderzoek te (laten) verrichten, dan wel andere adviseurs te raadplegen teneinde een goed inzicht te verkrijgen in de staat van onderhoud of andere aspecten van de onroerende zaak. Koper dient bij het doen van een bod wel direct aan te geven of hij een dergelijk onderzoek wenst;
- De waarborgsom/bankgarantie is 10% van de koopsom. De koper dient deze 1 week na het vervallen van de ontbindende voorwaarden bij de desbetreffende notaris te deponeren;
- Ter bescherming van de belangen van zowel koper als verkoper, wordt uitdrukkelijk gesteld dat een koopovereenkomst met betrekking tot deze onroerende zaak eerst dan tot stand komt, nadat koper en verkoper de koopovereenkomst hebben getekend ("schriftelijkheidsvereiste").

Kenmerken