Beschrijving

Deze leuke woning is rustig gelegen in het geliefde dorpje Elsloo met alle voorzieningen (winkels scholen) op loopafstand. De autosnelweg is eveneens met enkele minuten te bereiken. De woning is netjes onderhouden en kan geheel naar eigen wens verder worden gemoderniseerd ofwel verduurzaamd. Het pand is geheel voorzien van kunststof kozijnen met dubbelglas en grotendeels elektrische rolluiken. 
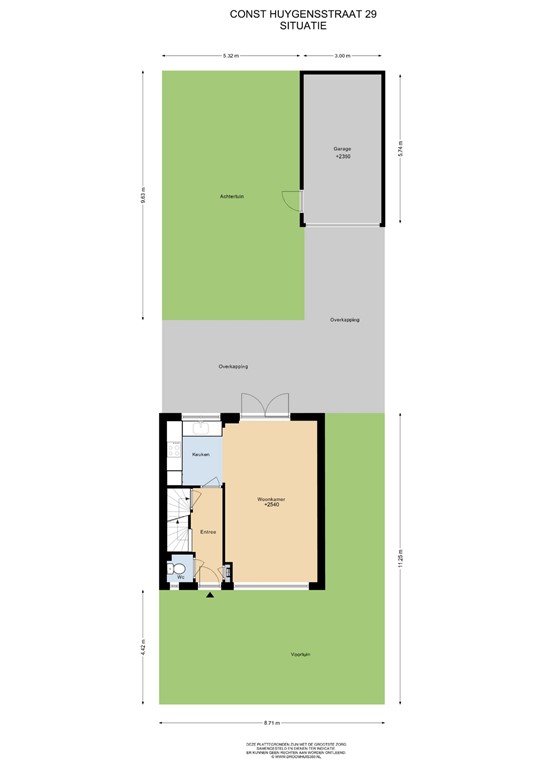
De tuin is aangelegd met een terras, overkapping, extra carport en toegang tot de achtergelegen garage. 

!! VIRTUEEL IN 3D BEZICHTIGEN VIA DE LINK MET TOUR!!

Indeling

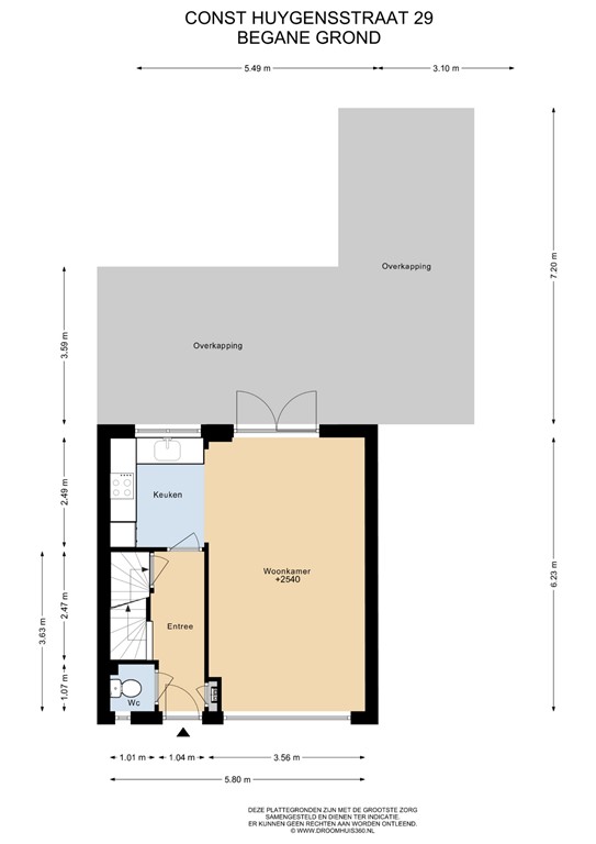
De hal is voorzien van de meterkast (vernieuwde groepenkast), toilet, toegang tot de kelder en de woonkamer/keuken. 
De lichte woonkamer is voorzien van laminaatvloer en staat in open verbinding met de moderne keuken met keramische kookplaat, combi-magnetron, afzuigkap, koelkast en vaatwasser.
Vanuit de woonkamer is er een schuifpui voor mooi en direct contact met de tuin en overkapping.

De kelder is functioneel als extra provisieruimte en met de wasmachine aansluiting ook als wasruimte.

Eerste verdieping

De overloop geeft toegang tot de 3 slaapkamers met laminaatvloer en de badkamer. De badkamer is voorzijde van een douche en wastafel.

De zolder is bereikbaar met een vlizotrap en dient als bergzolder.

Bijzonderheden

- Fijne en rustige ligging in het dorpje Elsloo met alle voorzieningen zoals winkels en scholen op loopafstand en binnen enkele minuten bereikt men de autosnelweg;
- Energielabel G;
- Licht interieur en nette keuken;
- Geheel kunststof kozijnen met dubbelglas en grotendeels elektrische rolluiken;
- Ideale woning om naar eigen wens nog te moderniseren ofwel verduurzamen;
- Verzorgde tuin met overkapping en een carport met toegang tot de achtergelegen garage.

Tot slot:
- Deze verkoopinformatie is met de nodige zorgvuldigheid samengesteld. Hierbij zijn wij deels afhankelijk van informatie die wij van derden ontvangen. Aan onjuistheden en/of onvolkomenheden kunt u echter geen rechten ontlenen. Indien bepaalde informatie voor u van wezenlijk belang is dan adviseren wij u deze op juistheid te controleren. Onzerzijds wordt geen aansprakelijkheid aanvaardt voor enige onvolledigheid, onjuistheid of anderszins, dan wel de gevolgen daarvan. Alle opgegeven maten en oppervlakten zijn indicatief;
- Koper is te allen tijde gerechtigd om voor eigen rekening een bouwkundig onderzoek te (laten) verrichten, dan wel andere adviseurs te raadplegen teneinde een goed inzicht te verkrijgen in de staat van onderhoud of andere aspecten van de onroerende zaak. Koper dient bij het doen van een bod wel direct aan te geven of hij een dergelijk onderzoek wenst;
- De waarborgsom/bankgarantie is 10% van de koopsom. De koper dient deze 1 week na het vervallen van de ontbindende voorwaarden bij de desbetreffende notaris te deponeren;
- Ter bescherming van de belangen van zowel koper als verkoper, wordt uitdrukkelijk gesteld dat een koopovereenkomst met betrekking tot deze onroerende zaak eerst dan tot stand komt, nadat koper en verkoper de koopovereenkomst hebben getekend ("schriftelijkheidsvereiste").

Kenmerken